top of page
MULTI-HOUSING - 3 UNITS
Map 41335
Map 41335
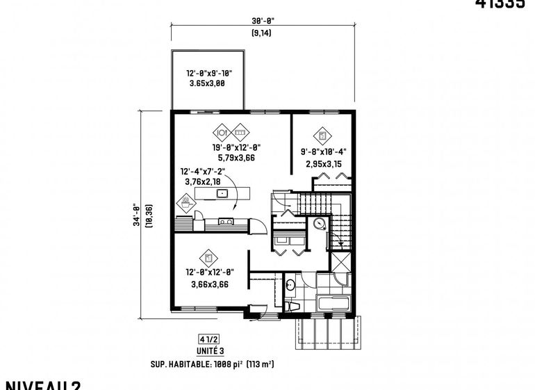
This resolutely urban style triplex stands out with its pretty porch and its stone and aluminum exterior cladding. It is made up of three four-and-a-half-room units, each having an area of 1,008 square feet, for a total living area of 3,024 square feet. Each unit has its own entrance and is arranged differently inside. In addition to the open-plan living areas – the kitchen, the living room and the dining room – located at the rear of the house, each unit includes two bedrooms, a bathroom with a bathtub on the podium and a separate shower, a storage space and a private balcony.

bottom of page




