New Page
ABOUT US
SYSTEM STRUCTURE ADVANTAGE
SYSTEM BENEFITS
SERVICES
PROJECTS
MATERIALS
PLANS
Contact
More
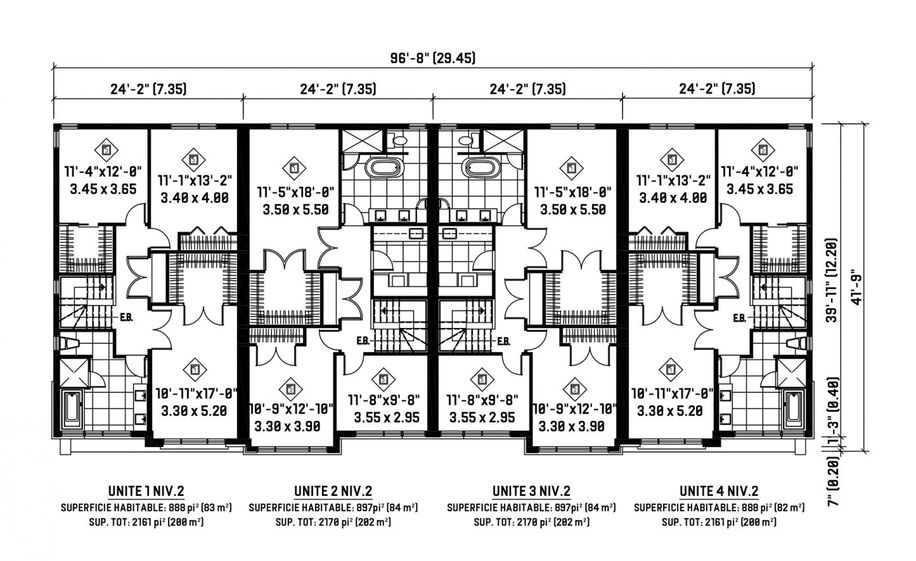
Map 41439
This urban-style multi-unit has a footprint of approximately 4074 sq. ft. and has a total living area of 8662 sq. ft. The building includes 4 units spread over 2 floors with a garage on the ground floor. All units are 5½.